House住まう
宮津住宅-51
登録番号:AB0007
- 購入
【基本情報】
| 登録日 | 2022年11月29日 |
|---|---|
| 登録番号 | AB0007 |
| 物件名 | 宮津住宅-51 |
| 契約形態 | 購入 |
| 所有者希望価格・賃料 |
購入:340 万円 |
| 物件種別 | 2階 |
| 住所 | 宮村1413番地1 |
| 移住促進特別区域 | |
| 地域区分 | 非線引き区域 |
| ペットの可否 | 可 |
| 入居条件・備考 | 現状有姿 自治会加入 現状有姿 自治会加入 土砂災害警戒区域(土石流・イエロー区域) |
【物件情報】
| 建物の種類 | 空家 |
|---|---|
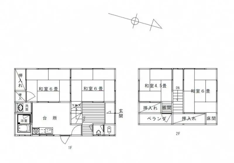
| 間取り | 4DK |
| 築年月 | 1979(昭和54年) |
| 延べ床面積 | 83.50㎡ |
| 敷地面積 | 117.11㎡ |
| 設備 |
電気:あり ガス:プロパン 上水:上水道 下水:汲取り(便所)他 インターネット接続環境:その他 駐車場:2台 |
| 付帯施設 | なし |
| 付帯する土地 | なし |
| 利用状況 | 不明 |
この物件のお問い合わせ先
- みやづ移住コンシェルジュ
- 〒626-0041 京都府宮津市鶴賀2164-2
前尾記念クロスワークセンターMIYAZU
TEL:050-5482-3345
mail:[email protected]






宮津市