House住まう
<豊栄>住宅(丹後町三宅No.945)
登録番号:AA0440
- 購入
【基本情報】
| 登録日 | 2026年1月16日 |
|---|---|
| 登録番号 | AA0440 |
| 物件名 | <豊栄>住宅(丹後町三宅No.945) |
| 契約形態 | 購入 |
| 所有者希望価格・賃料 |
購入:138 万円 |
| 物件種別 | 2階 |
| 住所 | 〒627-0212 京丹後市丹後町三宅 |
| 移住促進特別区域 | 京丹後市丹後町豊栄 |
| 地域区分 | 都市計画区域外 |
| ペットの可否 | 要相談 |
| 入居条件・備考 |
【物件情報】
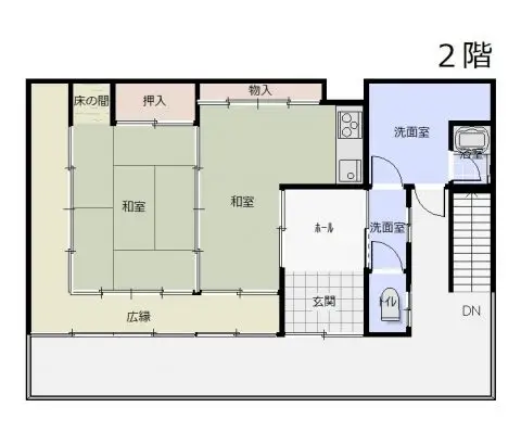
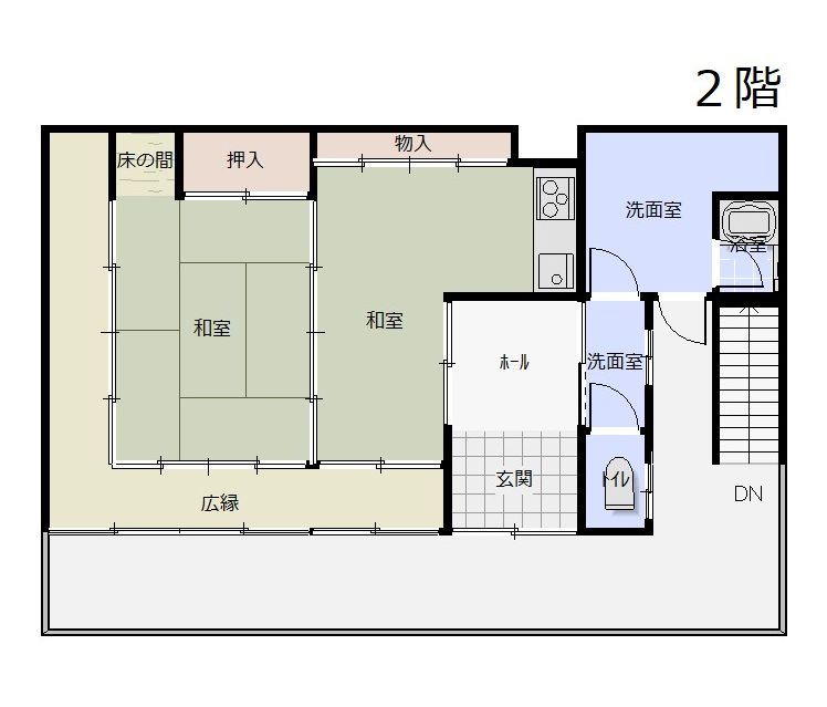
| 建物の種類 | 鉄骨造瓦葺2階建 |
|---|---|
| 間取り | 3DK |
| 築年月 | 不明 |
| 延べ床面積 | 76.49㎡ |
| 敷地面積 | 51.95㎡ |
| 設備 |
電気:あり ガス:プロパン 上水:上水道 下水:汲取り(便所)他 インターネット接続環境:その他 駐車場:3台以上 |
| 付帯施設 | なし |
| 付帯する土地 | なし |
| 利用状況 | お問い合わせください |
この物件のお問い合わせ先
- 京丹後市 市長公室 政策企画課
- 〒627-8567 京都府京丹後市峰山町杉谷889
TEL:0772-69-0120 FAX:0772-69-0901
mail:[email protected]






京丹後市