House住まう
T-581(有岡町)
登録番号:BA0750
- 交渉中
- 購入
- 農地
【基本情報】
| 登録日 | 2025年11月6日 |
|---|---|
| 登録番号 | BA0750 |
| 物件名 | T-581(有岡町) |
| 契約形態 | 購入 |
| 所有者希望価格・賃料 |
購入:580 万円 |
| 物件種別 | 平屋 |
| 住所 | 有岡町 |
| 移住促進特別区域 | 綾部市吉美 |
| 地域区分 | 非線引き区域 |
| ペットの可否 | 可 |
| 入居条件・備考 | ・修繕費用負担/買主負担 ・自治会への加入必要 ・本物件は宅地建物取引事業者が売買契約の仲介を行いますので、契約の際は法定の仲介手数料が必要です。 ・掲載図面等が現況と異なる場合は、現況を優先します。 |
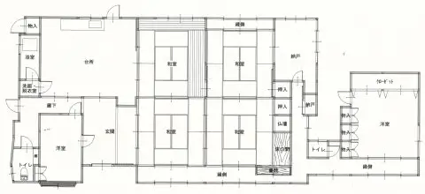
【物件情報】
| 建物の種類 | 木造草葺平家建 |
|---|---|
| 間取り | 5K以上 |
| 築年月 | 不明 |
| 延べ床面積 | 123.63㎡ |
| 敷地面積 | 616.11㎡ |
| 設備 |
電気:あり ガス:プロパン 上水:上水道 下水:合併処理浄化槽 インターネット接続環境:光回線 駐車場:3台以上 |
| 付帯施設 | 離れ、蔵、車庫 |
| 付帯する土地 |
畑 堤塘 |
| 利用状況 | 2024年10月頃まで入居/管理継続中 |
この物件のお問い合わせ先
- あやべ定住サポート相談窓口(定住交流部定住・地域政策課)
- 〒623-8501 京都府綾部市若竹町8番地の1
TEL:0773-42-4270 FAX:0773-42-4406
mail:[email protected]




綾部市