House住まう
三重森本住宅(大宮町森本№214)
登録番号:AA0065
- 購入
【基本情報】
| 登録日 | 2019年8月1日 |
|---|---|
| 登録番号 | AA0065 |
| 物件名 | 三重森本住宅(大宮町森本№214) |
| 契約形態 | 購入 |
| 所有者希望価格・賃料 |
購入:200 万円 |
| 物件種別 | 2階 |
| 住所 | 大宮町森本 |
| 移住促進特別区域 | 京丹後市大宮町三重・森本 |
| 地域区分 | 都市計画区域外 |
| ペットの可否 | 要相談 |
| 入居条件・備考 | 契約前に、京丹後市役所にお問合せください。 自治会の加入は必須です。 |
【物件情報】
| 建物の種類 | 木造瓦・亜鉛メッキ鋼板葺2階建 |
|---|---|
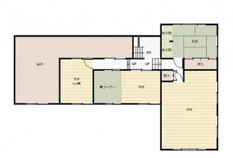
| 間取り | 5K以上 |
| 築年月 | 不明 |
| 延べ床面積 | 265.45㎡ |
| 敷地面積 | 280.99㎡ |
| 設備 |
電気:あり ガス:プロパン 上水:上水道 下水:汲取り(便所)他 インターネット接続環境:光回線 駐車場:なし |
| 付帯施設 | なし |
| 付帯する土地 | なし |
| 利用状況 | 不明 |
この物件のお問い合わせ先
- 京丹後市 市長公室 政策企画課
- 〒627-8567 京都府京丹後市峰山町杉谷889
TEL:0772-69-0120 FAX:0772-69-0901
mail:[email protected]






京丹後市