House住まう
No.555日吉町佐々江の物件
登録番号:CA0626
- 購入
- 農地
【基本情報】
| 登録日 | 2026年4月27日 |
|---|---|
| 登録番号 | CA0626 |
| 物件名 | No.555日吉町佐々江の物件 |
| 契約形態 | 購入 |
| 所有者希望価格・賃料 |
購入:要相談 |
| 物件種別 | 平屋 |
| 住所 | 南丹市日吉町佐々江 |
| 移住促進特別区域 | 南丹市日吉町五ヶ荘 |
| 地域区分 | 都市計画区域外 |
| ペットの可否 | 可 |
| 入居条件・備考 | ・修繕は入居者負担 ・ファミリー向け ・必ずしも現況を反映していない場合があります。お問い合わせもしくは南丹市定住促進ホームページでもご確認いただけます。 https://www.nancla.jp/ |
【物件情報】
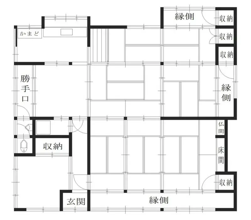
| 建物の種類 | 木造草葺平屋建 |
|---|---|
| 間取り | 5K以上 |
| 築年月 | 不明 |
| 延べ床面積 | 92.23㎡ |
| 敷地面積 | 585.12㎡ |
| 設備 |
電気:あり ガス:プロパン 上水:上水道 下水:汲取り(便所)他 インターネット接続環境:光回線 駐車場:なし |
| 付帯施設 | 倉庫 |
| 付帯する土地 |
畑 原野、山林 |
| 利用状況 |
現在空き家。 2008年5月頃退去。 |
この物件のお問い合わせ先
- 南丹市 地域振興部 地域振興課
- 〒622-8651 京都府南丹市園部町小桜町47番地
TEL:0771-68-0019 FAX:0771-63-0653
mail:[email protected]




南丹市